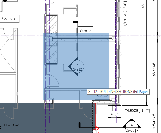
Large linked section extents
-
Large linked section extents
Hey guys, I have a weird one. At least, I’ve never seen this before.
All of a sudden, one of my user’s hyperlink box extents around linked sections is huge. He said it’s nearly impossible to click on the correct section when you’ve got a few in close-ish proximity to each other.
See attached images.
It’s only this one user, no one else seems affected. He uses the CTRL+P method of printing, not the Bluebeam plugin.
Log in to reply.



